Le nouveau sporting d’hiver baptisé One Monte Carlo s’élève face à la place du Casino de Monte Carlo, en plein cœur de Monaco.
Le complexe compte 7 bâtiments et 9 niveaux : des boutiques de luxe, des zones d’expositions, des puits de lumière, des locaux techniques, des parkings, des appartements et des bureaux.
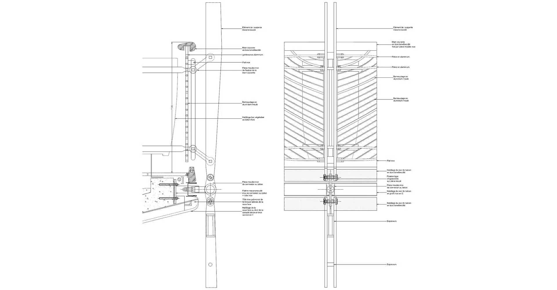
L’ensemble de ces immeubles offre des lignes épurées et fluides, faites de verre et de transparence.










