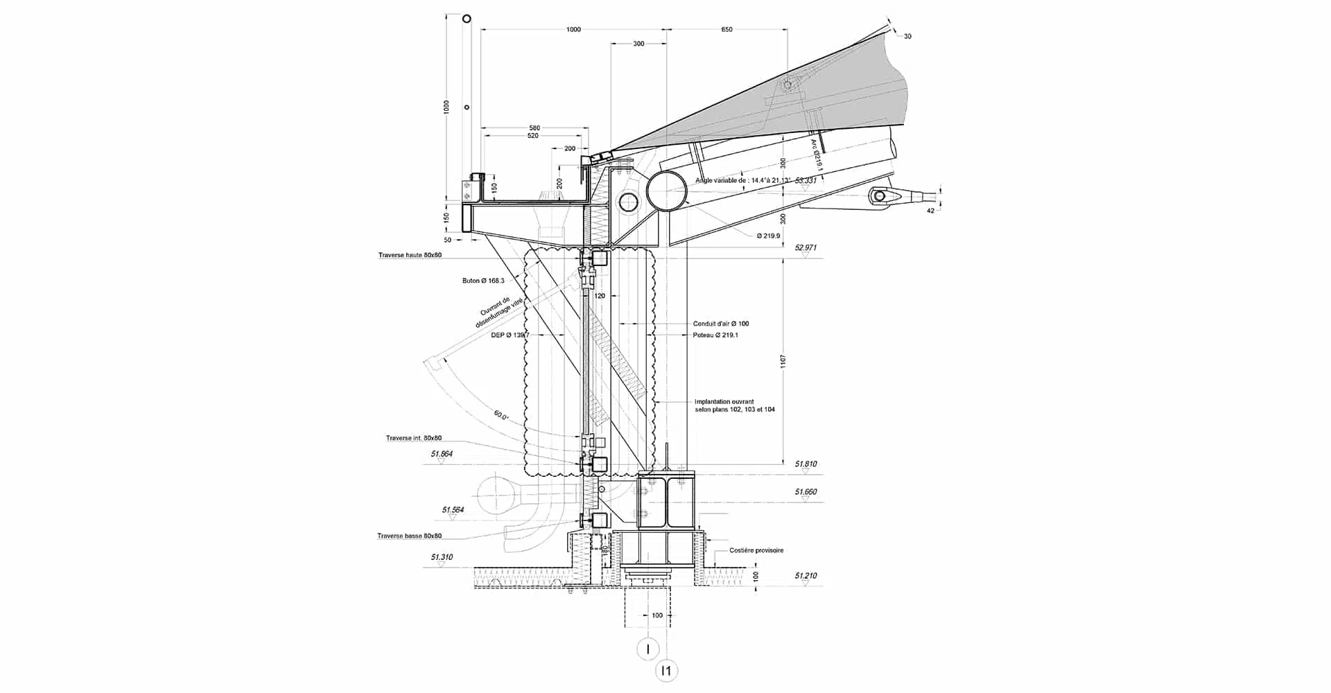
Il s’agit du projet d’extension du centre commercial recouvert d’une verrière sur mesure.
En matériau EFTE, cette membrane de 120 mètres de long et de 20 mètres de haut par endroits, est à la fois très résistante et translucide mais non sensible aux UV.
Centre commercial Polygone










